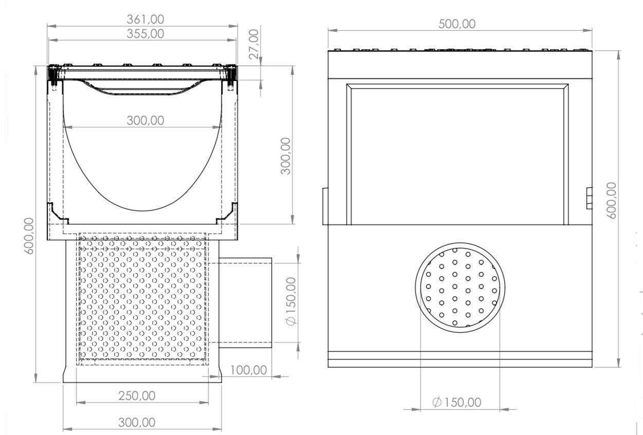
İP300.1300.V1.RType: Multifunctional collection shaft for linear drainage systems for heavy-duty vehicle pavements.
Material:Polymer concreteLoad capacity: 400kN (40 tons)
Box weight: 40 кг.Grid Weight: 15 кг.
İP300.1300.V1.RType: Multifunctional collection shaft for linear drainage systems for heavy-duty vehicle pavements.
Material:Polymer concreteLoad capacity: 400kN (40 tons)
Box weight: 40 кг.Grid Weight: 15 кг.
